Property main image
5 ảnh
Đã copy mã tin!

Bán đất SKC 10.400m² tại Bắc Tân Uyên, Bình Dương - Sẵn giấy phép xây dựng xưởng

40 tỷ
10400 m² - 4 triệu/m²

Xã Đất Cuốc, Huyện Bắc Tân Uyên, Tỉnh Bình Dương

9 ngày trước
Loại
Bán kho, nhà xưởng
Diện tích
10400 m²

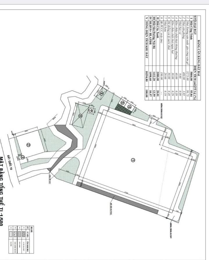
Cơ hội đầu tư hấp dẫn: Bán đất SKC pháp lý đầy đủ, sẵn sàng triển khai dự án ngay tại vị trí đắc địa Xã Đất Cuốc, Huyện Bắc Tân Uyên, Tỉnh Bình Dương.

Thông tin chi tiết:

  • Diện tích: 10.400m²
  • Loại đất: SKC (Đất cơ sở sản xuất, kinh doanh)
  • Giấy phép xây dựng: Đã có giấy phép xây dựng xưởng 5.200m² và văn phòng 440m².
  • Thời hạn thuê đất còn lại (nếu áp dụng cho thuê): 15 năm
  • Giá thuê (nếu áp dụng cho thuê): 100 triệu/tháng (cọc 6 tháng)
  • Đặc điểm: Vị trí thuận lợi cho phát triển công nghiệp, sản xuất, kinh doanh. Pháp lý minh bạch, giấy tờ đầy đủ.

Tiện ích xung quanh:

  • Nằm trên địa bàn Xã Đất Cuốc, Huyện Bắc Tân Uyên, khu vực có tiềm năng phát triển công nghiệp của tỉnh Bình Dương.
  • Gần các tuyến đường giao thông huyết mạch, thuận tiện cho việc vận chuyển hàng hóa.
  • Khu vực quy hoạch phát triển công nghiệp, dễ dàng kết nối với các tiện ích hạ tầng kỹ thuật.
  • Dễ dàng tiếp cận các khu công nghiệp lân cận trên địa bàn tỉnh Bình Dương.
  • Gần các dịch vụ tiện ích phục vụ cho hoạt động sản xuất và đời sống công nhân.

Giá và điều kiện:

  • Giá bán: 40 tỷ VND

Phù hợp với ai:

Bất động sản này cực kỳ phù hợp với các doanh nghiệp đang tìm kiếm quỹ đất lớn để xây dựng nhà xưởng, kho bãi hoặc các cơ sở sản xuất, kinh doanh tại Bình Dương. Với giấy phép xây dựng sẵn có, nhà đầu tư có thể rút ngắn thời gian triển khai dự án và bắt đầu hoạt động sớm.

Liên hệ:

Đừng bỏ lỡ cơ hội sở hữu lô đất SKC tiềm năng này. Liên hệ ngay để nhận thông tin chi tiết và sắp xếp lịch xem đất.

Tổng Kho BĐS luôn sẵn sàng đồng hành cùng bạn trên hành trình tìm kiếm bất động sản phù hợp nhất.

Liên hệ ngay để được chuyên viên tư vấn và hỗ trợ nhanh nhất!

TongkhoBDS.com – Kho dữ liệu Bất động sản lớn nhất Việt Nam

Địa chỉ: 51 Kim Mã, Ba Đình, Hà Nội

Hotline: 1900.988.998

Email: cskh@tongkhobds.com

0
So sánh