Tin đăng này đã hết hạn trên tongkhobds.com.

Bạn có thể tham khảo những gợi ý dưới đây hoặc sử dụng công cụ tìm kiếm trên website để tìm những tin đăng mới nhất.

Property main image
13 ảnh
Đã copy mã tin!

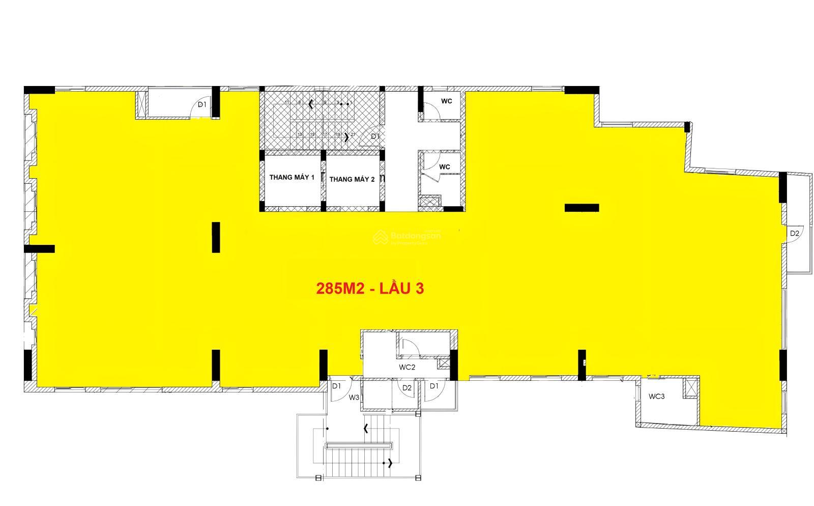
Văn phòng cho thuê Tòa nhà Adele 285m² giá 66 triệu - Không gian làm việc lý tưởng!

66 triệu
285 m² - 0 triệu/m²

2, Tân Bình, Hồ Chí Minh

6 tháng trước
Loại
Cho thuê văn phòng
Diện tích
285 m²

Chào mừng bạn đến với Tòa nhà Adele, một trong những không gian làm việc lý tưởng nhất tại Quận Tân Bình! Với diện tích 285m², văn phòng này sẵn sàng đáp ứng nhu cầu phát triển của doanh nghiệp bạn.

Thông tin chi tiết:

  • Diện tích: 285 m²
  • Bố trí: Lầu 3, không gian mở thoáng đãng
  • Đặc điểm: Tòa nhà 1 hầm - 9 tầng, trang bị đầy đủ thang máy, máy lạnh, đèn chiếu sáng và bảo vệ 24/7

Tiện ích xung quanh:

  • Gần các trung tâm thương mại lớn, thuận tiện cho việc mua sắm
  • Cách sân bay Tân Sơn Nhất chỉ 10 phút di chuyển
  • Giao thông thuận lợi với nhiều tuyến đường chính
  • Gần các cơ sở y tế, trường học và khu vực ăn uống đa dạng
  • Hệ thống an ninh đảm bảo, tạo môi trường làm việc an toàn

Giá và điều kiện:

  • Giá thuê: 66 triệu/tháng (chưa bao gồm phí quản lý và VAT)

Phù hợp với ai:

Văn phòng phù hợp cho các doanh nghiệp đang tìm kiếm một không gian làm việc hiện đại, tiện nghi và thuận lợi về giao thông.

Liên hệ:

Đừng bỏ lỡ cơ hội sở hữu không gian làm việc lý tưởng tại Tòa nhà Adele! Hãy liên hệ ngay để biết thêm chi tiết và đặt lịch xem văn phòng.

Tổng Kho BĐS luôn sẵn sàng đồng hành cùng bạn trên hành trình tìm kiếm bất động sản phù hợp nhất.

Liên hệ ngay để được chuyên viên tư vấn và hỗ trợ nhanh nhất!

TongkhoBDS.com – Kho dữ liệu Bất động sản lớn nhất Việt Nam

Địa chỉ: 51 Kim Mã, Ba Đình, Hà Nội

Hotline: 1900.988.998

Email: cskh@tongkhobds.com

Vị trí

Địa chỉ: 373 - 375, Đường Nguyễn Trọng Tuyển, Phường 2, Tân Bình, Hồ Chí Minh
Tỉnh/Thành: Hồ Chí Minh
Quận/Huyện: Tân Bình
Phường/Xã: 2
0
So sánh