Property main image
1 ảnh
Đã copy mã tin!

Đất nền mặt tiền đường Tôn Đản, An Khê, 80m² - Cơ hội đầu tư hấp dẫn!

4.75 tỷ
80 m² - 59 triệu/m²

Phường An Khê, Quận Thanh Khê, Đà Nẵng

3 tháng trước
Loại
Bán đất
Diện tích
80 m²

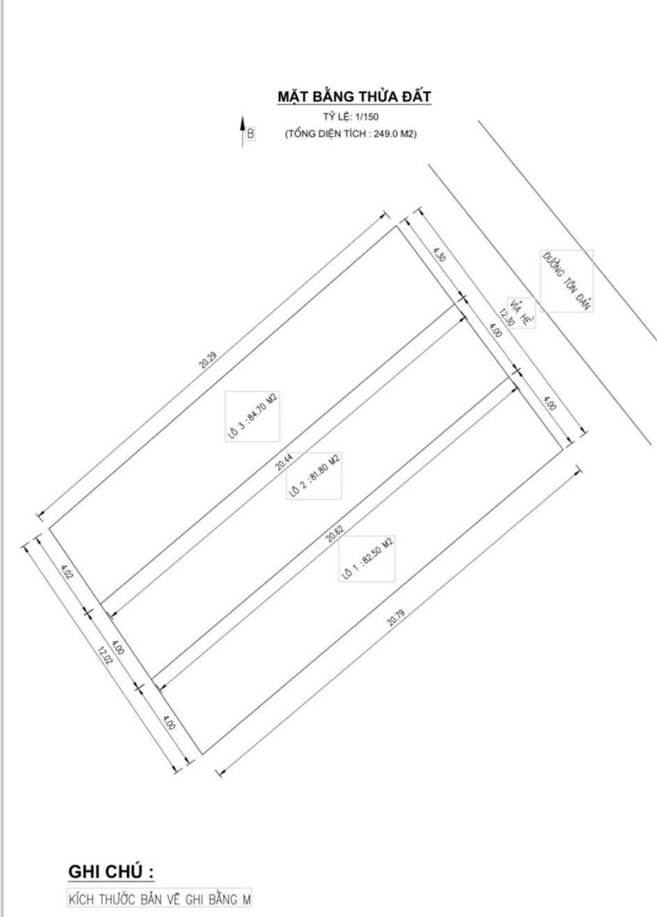
Chào mừng bạn đến với cơ hội đầu tư hấp dẫn tại khu vực An Khê, quận Thanh Khê, TP Đà Nẵng! Cần bán gấp 3 lô đất liền kề mặt tiền đường Tôn Đản, với mặt đường rộng 7.5m và lề đường 4.5m, nơi lý tưởng cho cả mục đích ở và kinh doanh.

Thông tin chi tiết:

  • Diện tích: 80m² (4m x 20m) mỗi lô
  • Bố trí: Đường thông, thuận lợi di chuyển
  • Đặc điểm: Còn dư 250m² đất thừa phía sau, tự do sử dụng

Tiện ích xung quanh:

  • Gần ngã tư Vũ Lăng, thuận tiện cho việc đi lại và kết nối với các tuyến đường chính
  • Phù hợp cho việc kinh doanh buôn bán, với vị trí đắc địa
  • Khu vực dân cư đông đúc, tiềm năng phát triển mạnh mẽ
  • Đường rộng rãi, dễ dàng đậu xe ô tô
  • Gần các tiện ích như trường học, chợ, siêu thị và bệnh viện

Giá và điều kiện:

  • Giá bán: 4.750 triệu VND (có thương lượng nhẹ)

Phù hợp với ai:

Đây là lựa chọn lý tưởng cho những ai đang tìm kiếm một bất động sản vừa để ở vừa để kinh doanh, đặc biệt là các nhà đầu tư muốn khai thác tiềm năng của khu vực đang phát triển.

Liên hệ:

Hãy nhanh tay liên hệ để không bỏ lỡ cơ hội sở hữu lô đất mặt tiền đắc địa này!

Tổng Kho BĐS luôn sẵn sàng đồng hành cùng bạn trên hành trình tìm kiếm bất động sản phù hợp nhất.

Liên hệ ngay để được chuyên viên tư vấn và hỗ trợ nhanh nhất!

TongkhoBDS.com – Kho dữ liệu Bất động sản lớn nhất Việt Nam

Địa chỉ: 51 Kim Mã, Ba Đình, Hà Nội

Hotline: 1900.988.998

Email: cskh@tongkhobds.com

0
So sánh