Property main image
2 ảnh
Đã copy mã tin!

Đất nền phân lô Xóm 2, Chương Dương, 96.5m² - Giá cực tốt chỉ 3.182 tỷ!

3.182 tỷ
96 m² - 33 triệu/m²

Xã Chương Dương, Huyện Thường Tín, Hà Nội

3 tháng trước
Loại
Bán đất
Diện tích
96 m²

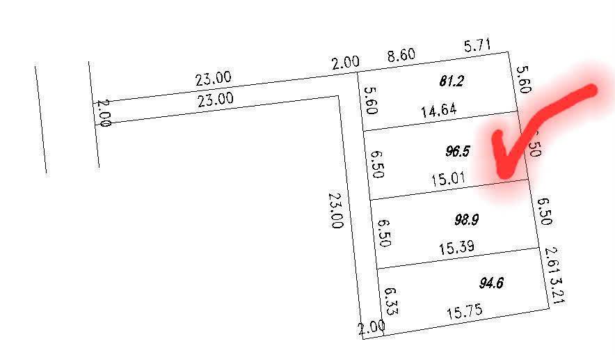
Nằm trong khu phân lô Xóm 2, Chương Dương, Thường Tín, Hà Nội, lô đất này sẽ là lựa chọn lý tưởng cho những ai đang tìm kiếm một không gian sống thoải mái, tiện nghi. Với diện tích 96.5m² và mặt tiền 6.5m, đất phân lô này có khả năng xây dựng nhà ở hoặc đầu tư sinh lời.

Thông tin chi tiết:

  • Diện tích: 96.5m²
  • Bố trí: Lô số 2, 2 mặt thoáng trước sau, hướng Tây
  • Đặc điểm: Đường ô tô 5 chỗ vào nhà, cách trục chính thông ô tô tránh 20m

Tiện ích xung quanh:

  • Cách 300m đến trường học và chợ, thuận tiện cho sinh hoạt hàng ngày
  • Gần ủy ban nhân dân phường Chương Dương, dễ dàng tiếp cận các dịch vụ hành chính
  • Khu vực dân cư đông đúc, an ninh tốt
  • Liền kề các tiện ích cơ bản, đảm bảo cuộc sống thoải mái cho gia đình bạn

Giá và điều kiện:

  • Giá bán: 3.182.275.000 VND

Phù hợp với ai:

Bất động sản này rất phù hợp cho các gia đình trẻ, nhà đầu tư hoặc những ai yêu thích không gian sống yên tĩnh, gần gũi với thiên nhiên.

Liên hệ:

Đừng bỏ lỡ cơ hội sở hữu lô đất tuyệt vời này! Hãy nhanh tay liên hệ để biết thêm thông tin chi tiết và sắp xếp lịch xem đất.

Tổng Kho BĐS luôn sẵn sàng đồng hành cùng bạn trên hành trình tìm kiếm bất động sản phù hợp nhất.

Liên hệ ngay để được chuyên viên tư vấn và hỗ trợ nhanh nhất!

TongkhoBDS.com – Kho dữ liệu Bất động sản lớn nhất Việt Nam

Địa chỉ: 51 Kim Mã, Ba Đình, Hà Nội

Hotline: 1900.988.998

Email: cskh@tongkhobds.com

0
So sánh