Property main image
5 ảnh
Đã copy mã tin!

Đất nền Ứng Hòa, Hà Nội 86m² - Tiềm năng tăng giá vượt trội!

Thỏa thuận
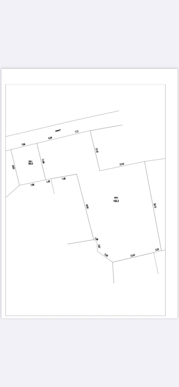
86 m²

Xã Hoa Viên, Huyện Ứng Hòa, Thành phố Hà Nội

1 tháng trước
Loại
Bán đất
Diện tích
86 m²

Nắm bắt cơ hội sở hữu lô đất vàng tại Ứng Hòa – Hà Nội, nơi an cư lý tưởng và đầu tư sinh lời bền vững!

Thông tin chi tiết:

  • Diện tích:86m²
  • Bố trí:Lô đất vuông vắn, nằm trên mặt đường trục chính Ứng Thiên, tối ưu cho việc xây dựng và kinh doanh.
  • Đặc điểm:Pháp lý sổ đỏ chính chủ rõ ràng, đường rộng ô tô tránh thoải mái, khu dân cư đông đúc, gần khu đất đấu giá hứa hẹn tiềm năng tăng giá vượt trội.

Tiện ích xung quanh:

  • Trường Tiểu học Hoa Viên cách vài phút di chuyển, tiện lợi cho gia đình có con nhỏ.
  • Trạm Y tế xã Hoa Viên đảm bảo chăm sóc sức khỏe ban đầu cho cư dân.
  • Gần UBND xã Hoa Viên, thuận tiện giải quyết các thủ tục hành chính.
  • Dễ dàng tiếp cận Chợ Vân Đình (Chợ Ứng Hòa) cách khoảng 5-7km, đáp ứng nhu cầu mua sắm đa dạng.
  • Hệ thống đường giao thông rộng rãi, liên kết khu vực tốt, thuận tiện di chuyển.

Giá và điều kiện:

  • Giá bán/thuê:Liên hệ để biết giá chi tiết

Phù hợp với ai:

Lô đất lý tưởng cho các nhà đầu tư đón đầu tiềm năng phát triển của khu vực Ứng Hòa, các gia đình muốn xây dựng tổ ấm an cư lâu dài với không gian sống rộng rãi, hoặc những ai mong muốn kinh doanh nhỏ lẻ ngay tại nhà.

Liên hệ:

Đừng bỏ lỡ cơ hội vàng này! Liên hệ ngay để được tư vấn chi tiết và sắp xếp lịch xem đất trực tiếp.

Tổng Kho BĐS luôn sẵn sàng đồng hành cùng bạn trên hành trình tìm kiếm bất động sản phù hợp nhất.

Liên hệ ngay để được chuyên viên tư vấn và hỗ trợ nhanh nhất!

TongkhoBDS.com – Kho dữ liệu Bất động sản lớn nhất Việt Nam

Địa chỉ: 51 Kim Mã, Ba Đình, Hà Nội

Hotline: 1900.988.998

Email: cskh@tongkhobds.com

0
So sánh