Property main image
3 ảnh
Đã copy mã tin!

Đất thổ cư 197m² tại Tân Trụ, Tây Ninh - Cơ hội đầu tư hiếm có!

739 triệu
197 m² - 4 triệu/m²

Tân Trụ, Huyện Tân Châu, Tây Ninh

3 tháng trước
Loại
Bán đất
Diện tích
197 m²

Bạn đang tìm kiếm một lô đất thổ cư với vị trí đắc địa để đầu tư hoặc xây dựng nhà ở? Lô đất này chính là lựa chọn hoàn hảo dành cho bạn!

Thông tin chi tiết:

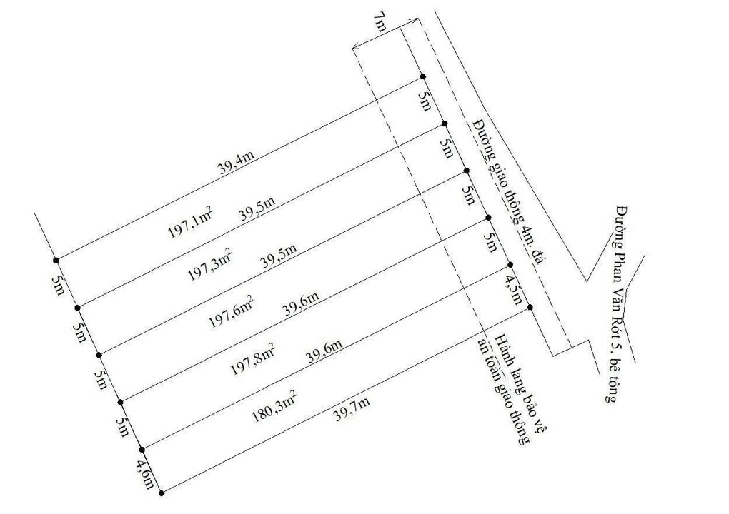
  • Diện tích: 197.1m² (Ngang 5m, dài 39.5m)
  • Bố trí: Đất cao ráo, khu vực dân cư đông đúc
  • Đặc điểm: Thích hợp xây nhà vườn hoặc mở quán ăn uống, vị trí ngay trung tâm, giao thông thuận lợi

Tiện ích xung quanh:

  • Gần bến xe Tân Trụ, thuận tiện di chuyển đến các khu vực lân cận
  • Chỉ cách đường Cao Thị Mai khoảng 200m, dễ dàng tiếp cận
  • Khu vực dân cư sầm uất, phát triển mạnh mẽ
  • Thích hợp cho gia đình hoặc nhà đầu tư muốn kinh doanh

Giá và điều kiện:

  • Giá bán: 739 triệu VND

Phù hợp với ai:

Lô đất này rất phù hợp với các nhà đầu tư, gia đình muốn xây dựng nhà vườn hoặc các doanh nhân đang tìm kiếm mặt bằng kinh doanh.

Liên hệ:

Đừng bỏ lỡ cơ hội sở hữu lô đất vàng này! Hãy liên hệ ngay để được tư vấn chi tiết và xem đất trực tiếp!

Tổng Kho BĐS luôn sẵn sàng đồng hành cùng bạn trên hành trình tìm kiếm bất động sản phù hợp nhất.

Liên hệ ngay để được chuyên viên tư vấn và hỗ trợ nhanh nhất!

TongkhoBDS.com – Kho dữ liệu Bất động sản lớn nhất Việt Nam

Địa chỉ: 51 Kim Mã, Ba Đình, Hà Nội

Hotline: 1900.988.998

Email: cskh@tongkhobds.com

0
So sánh