Property main image
6 ảnh
Đã copy mã tin!

Đất thổ cư Phú Hòa 88m² giá 2.46 tỷ - Vị trí hiếm có đối diện chợ!

2.46 tỷ
88 m² - 28 triệu/m²

Phường Phú Hòa, Thành phố Thủ Dầu Một, Bình Dương

3 tháng trước
Loại
Bán đất
Diện tích
88 m²

Đừng bỏ lỡ cơ hội sở hữu mảnh đất tuyệt vời nằm ngay đối diện cổng chợ Phú Hòa, Thủ Dầu Một! Với vị trí đắc địa chỉ cách chợ 20m, bạn chỉ cần vài bước chân là đã có thể mua sắm tiện lợi. Đặc biệt, mảnh đất này còn sát bên trường mầm non và tiểu học, rất phù hợp cho gia đình có trẻ nhỏ. Đây là cơ hội hiếm có khó tìm trong khu vực!

Thông tin chi tiết:

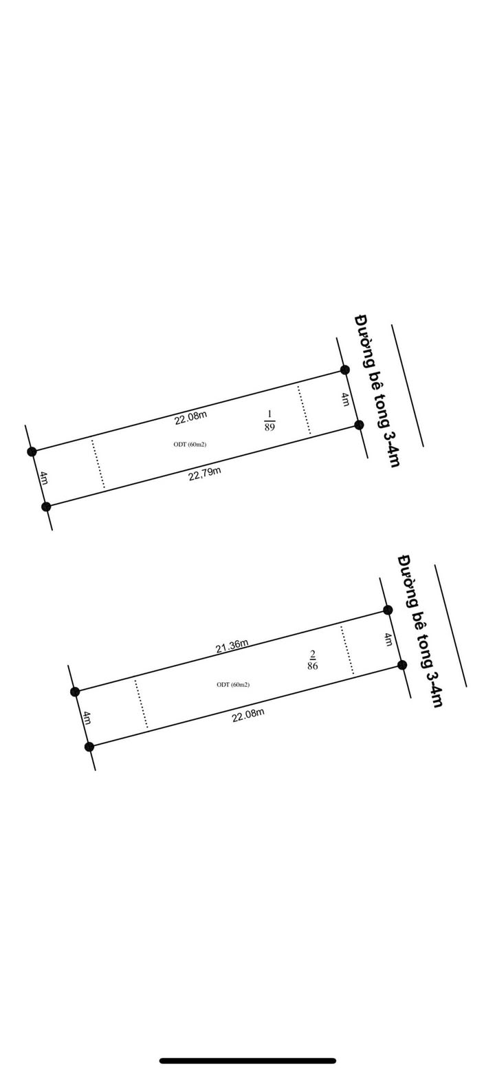
  • Diện tích: 88m² (4x22m)
  • Bố trí: Thổ cư 60m²
  • Đặc điểm: Đường bê tông, sổ đỏ đang tách, công chứng trong 2 tháng

Tiện ích xung quanh:

  • Đối diện cổng chợ Phú Hòa, thuận tiện cho việc mua sắm hàng ngày
  • Cách trường mầm non và tiểu học chỉ vài bước chân, thuận lợi cho con em đi học
  • Gần các tiện ích khác như siêu thị, trung tâm y tế, và khu vui chơi
  • Hệ thống giao thông phát triển, dễ dàng di chuyển đến các khu vực lân cận

Giá và điều kiện:

  • Giá bán: 2.460 triệu VND (có bớt lộc)

Phù hợp với ai:

Mảnh đất này rất phù hợp cho gia đình trẻ, các nhà đầu tư hoặc những ai đang tìm kiếm một nơi an cư lý tưởng với đầy đủ tiện ích xung quanh.

Liên hệ:

Hãy liên hệ ngay hôm nay để xem đất và nắm bắt cơ hội đầu tư tuyệt vời này!

Tổng Kho BĐS luôn sẵn sàng đồng hành cùng bạn trên hành trình tìm kiếm bất động sản phù hợp nhất.

Liên hệ ngay để được chuyên viên tư vấn và hỗ trợ nhanh nhất!

TongkhoBDS.com – Kho dữ liệu Bất động sản lớn nhất Việt Nam

Địa chỉ: 51 Kim Mã, Ba Đình, Hà Nội

Hotline: 1900.988.998

Email: cskh@tongkhobds.com

0
So sánh