Chung cư Nguyễn Huy Lượng, Binh Thạnh, TP Hồ Chí Minh
Đường Nguyễn Huy Lượng, Phường 14, Bình Thạnh, Hồ Chí Minh, 14, Bình Thạnh, Hồ Chí Minh
Tổng quan dự án
Giới thiệu dự án

Phối cảnh chung cư Nguyễn Huy Lượng
Dự án chung cư Nguyễn Huy Lượng có tồng diện tích xây dựng là 5.792m2 với mật độ xây dựng 40,52%. Theo thiết kế, công trình gồm 2 đơn nguyên, 1 đơn nguyên trong đó là cao ốc văn phòng cao 12 tầng có tổng diện tích sàn xây dựng là 3.280m2, 1 đơn nguyên khác là các căn hộ cao cấp dự kiến sẽ cung ứng cho thị trường 42 căn hộ với 3 mẫu thiết kế khác nhau cho khách hàng dễ dàng lựa chọn.
Dự án chung cư Nguyễn Văn Lượng được thiết kế theo phong cách kiến trúc hiện đại, sang trọng cung cấp một không gian sống tinh tế, yên bình, gần gũi với thiên nhiên.
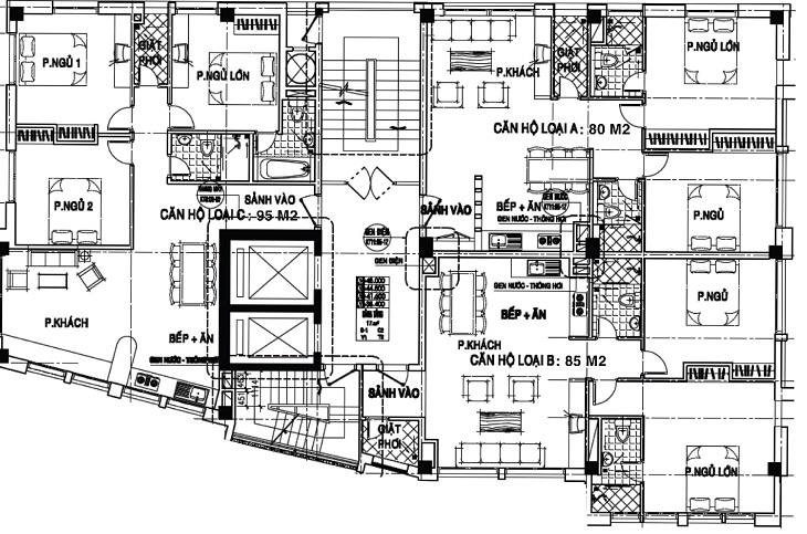
Căn hộ Nguyễn Huy Lượng loại A có diện tích 80m2 gồm: 2 phòng ngủ, 1 phòng khách, 1 phòng bếp, 2 phòng vệ sinh, phòng giặt.
Căn hộ Nguyễn Huy Lượng loại B với diện tích 85m2 gồm có 2 phòng ngủ, 1 phòng khách, phòng bếp, 2 khu vệ sinh và phòng giặt.
Căn hộ Nguyễn Huy Lượng loại C, diện tích 95m2 với thiết kế gồm 3 phòng ngủ, 1 phòng khách, phòng bếp, 2 phòng vệ sinh, phòng giặt.
Pháp lý
Ký hợp đồng mua bán trực tiếp với Chủ đầu tưTiện ích
- Tiện ích ngoại khu: Chung cư Nguyễn Văn Lượng được thừa hưởng hệ thống hạ tầng tiện ích xung quanh hoàn thiện, gần kề với trung tâm hành chính quận Bình Thạnh, được kết nối với những trục đường chính như Nơ Trang Long, Đinh Tiên Hoàng, gần bệnh viện Gia Định Tp.HCM, bệnh viện Quốc tế Columbia, siêu thị Coopmart, chợ Bà Chiểu…
- Tiện ích nội khu: Tòa chung cư Nguyễn Văn Lượng có đầy đủ các tiện ích như cao ốc văn phòng, trung tâm thương mại, công viên cây xanh. Bên cạnh đó, chung cư được trang bị hệ thống thông tin liên lạc hiện đại, hệ thống phòng cháy chữa cháy, hệ thống chống sét, thang máy tốc độ cao cùng các trang thiết bị hiện đại khác và đảm bảo an ninh 24/24.

Tiện ích chung cư Nguyễn Huy Lượng

Tiện ích chung cư Nguyễn Huy Lượng
Tiến độ
Đang bàn giao nhàThanh toán
Giá bán trực tiếp của chủ đầu tư tầm khoảng 24 triệu VNĐ/m2 đã bao gồm 10% VAT. Tuy nhiên, các tầng khác nhau sẽ khác nhau thì giá và phương thức thanh toán sẽ khác nhau.
Ngân hàng MB và AZN sẽ hỗ trợ vay khi mua căn hộ tại Chung cư Nguyễn Huy Lượng với mức lãi suất ưu đãi.
Mặt bằng tổng thể

Mặt bằng căn hộ chung cư Nguyễn Huy Lượng

Phòng ăn chung cư Nguyễn Huy Lượng
Mặt bằng dự án
Mặt bằng thứ 1
Mặt bằng thứ 2
Mặt bằng thứ 3
Mặt bằng thứ 4