Itaewon An Dương, An Dương, Hải Phòng
Quốc lộ 10, thôn Trạm Bạc, xã Lê Lợi, huyện An Dương, thành phố Hải Phòng, Lê Lợi, An Dương
Tổng quan dự án
Giới thiệu dự án

Phối cảnh dự án Itaewon An Dương Hải Phòng
Dự án: Itaewon An Dương Hải Phòng
Vị trí: Quốc lộ 10, thôn Trạm Bạc, xã Lê Lợi, huyện An Dương, thành phố Hải Phòng
Chủ đầu tư: Công ty Cổ phần Kinh doanh DVTM Cầu Vồng Hoa Lan 7&1
Quản lý vận hàng: Savills
Tổng diện tích: 4,37 ha
Mật độ xây dựng: 42.1%
Loại hình: 224 căn Shophouse và liền kề xây 4 tầng 1 tum
Diện tích: 70m2-120m2 một số sản phẩm có diện tích đặc biệt lên đến 252 và 232 m2
Hình thức bàn giao: Xây thô hoàn thiện mặt ngoài
Pháp lý: Sổ đỏ lâu dài
Ngân hàng tài trợ vốn: Ngân hàng TMCP Tiên Phong
Năm khởi công: Tháng 9/2022
Thời gian bàn giao: Tháng 4/2024
Pháp lý
Pháp lý dự án đầy đủ, sổ đỏ từng căn.
Tiện ích
Tiện ích nội khu KĐT Itaewon An Dương- Công viên cây xanh
- Đường dạo bộ
- Chốt bảo vệ
- Camera an ninh...
Tiện ích liền kề dự án Itaewon An Dương Hải Phòng
- Liền kề tổ hợp nhà máy LG Việt Nam
- Ga Hải Phòng
- Sân bay Kiến An
- Cao tốc Hà Nội – Quảng Ninh
- Trung tâm thành phố Hải Phòng
- Bệnh viện Việt Tiệp
- Chợ Hoàng Lâu
- KĐT Ecoseoul Tràng Duệ
- Chợ Tràng Duệ
- Bệnh viện đa khoa An Lão...
Tiến độ
Tiến độ thi công đang được cập nhật.
Thanh toán
Theo tìm hiểu của nhadat24h.net thì tiến độ thanh toán dự án Itaewon An Dương được chia thành nhiều đợt giúp khách hàng có nhiều thời gian để chuẩn bị tài chính.
Chiết khấu ngay 1% giá bán cho 30 KH cọc đầu tiên
Chiết khấu ngay 3% giá bán cho KH thanh toán sớm 50% giá trị Shophouse.
Chiết khấu ngay 6% giá bán cho KH thanh toán sớm 70% giá trị Shophouse.


Tiến độ thanh toán dự án Itaewon An Dương Hải Phòng
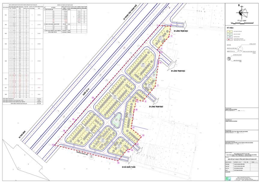
Mặt bằng tổng thể

Tổng quan dự án Itaewon An Dương Hải Phòng


Mặt bằng dự án Itaewon An Dương Hải Phòng

Shophouse tại dự án Itaewon An Dương Hải Phòng

Shophouse tại dự án Itaewon An Dương Hải Phòng
Mặt bằng dự án
Mặt bằng thứ 1
Mặt bằng thứ 2
Mặt bằng thứ 3
Mặt bằng thứ 4
Mặt bằng thứ 5
Mặt bằng thứ 6
Mặt bằng thứ 7