Khu dân cư Anh Tuấn Garden
Đường Lê Văn Lương, Xã Nhơn Đức, Huyện Nhà Bè, Hồ Chí Minh., Nhơn Đức, Nhà Bè
Tổng quan dự án
Dự án Anh Tuan Garden được triển khai trên khu đất rộng gần 3ha bởi Công ty CP Đầu tư Anh Tuấn với các lô đất nền có diện tích từ 100m2. Dự án nằm ngay mặt tiền đường Lê Văn Lương, xã Nhơn Đức, huyện nhà Bè nên việc kết nối giao thông với khu vực lân cận và trung tâm Tp.HCM rất thuận lợi.
- Tên dự án: Khu dân cư Anh Tuấn Garden
- Chủ đầu tư: Công ty CP Đầu tư Anh Tuấn
- Vị trí: đường Lê Văn Lương, xã Nhơn Đức, huyện nhà Bè
- Diện tích tổng thể: 27.779m2
- Diện tích xây dựng: 11.470m2

Phối cảnh tổng thể dự án Khu dân cư Anh Tuấn Garden
Hạ tầng - Quy hoạch
Dự án Anh Tuấn Garden nằm cách trung tâm đô thị Phú Mỹ Hưng chỉ 5km, trung tâm thành phố 9km, cảng Hiệp Phước 5 km, cầu Phú Mỹ 7km… và được nối kết thuận tiện với nhiều tuyến đường giao thông thuận lợi như Nguyễn Hữu Thọ, Nguyễn Văn Linh, tuyến Metro số 4, Vành Đai 3…
Ngoài ra, dự án còn liền kề với khu dân cư hiện hữu nên được tận hưởng không gian sống trong lành với công viên cây xanh rộng hơn 7.200m2. Nơi đây vừa mang đến không gian sống lý tưởng, vừa là nơi giải trí, gặp gỡ giao lưu và thư giãn, phục vụ nhu cầu mua sắm hàng ngày của gia đình bạn với trung tâm thương mại, khu vui chơi giải trí hiện đại.
.jpg)
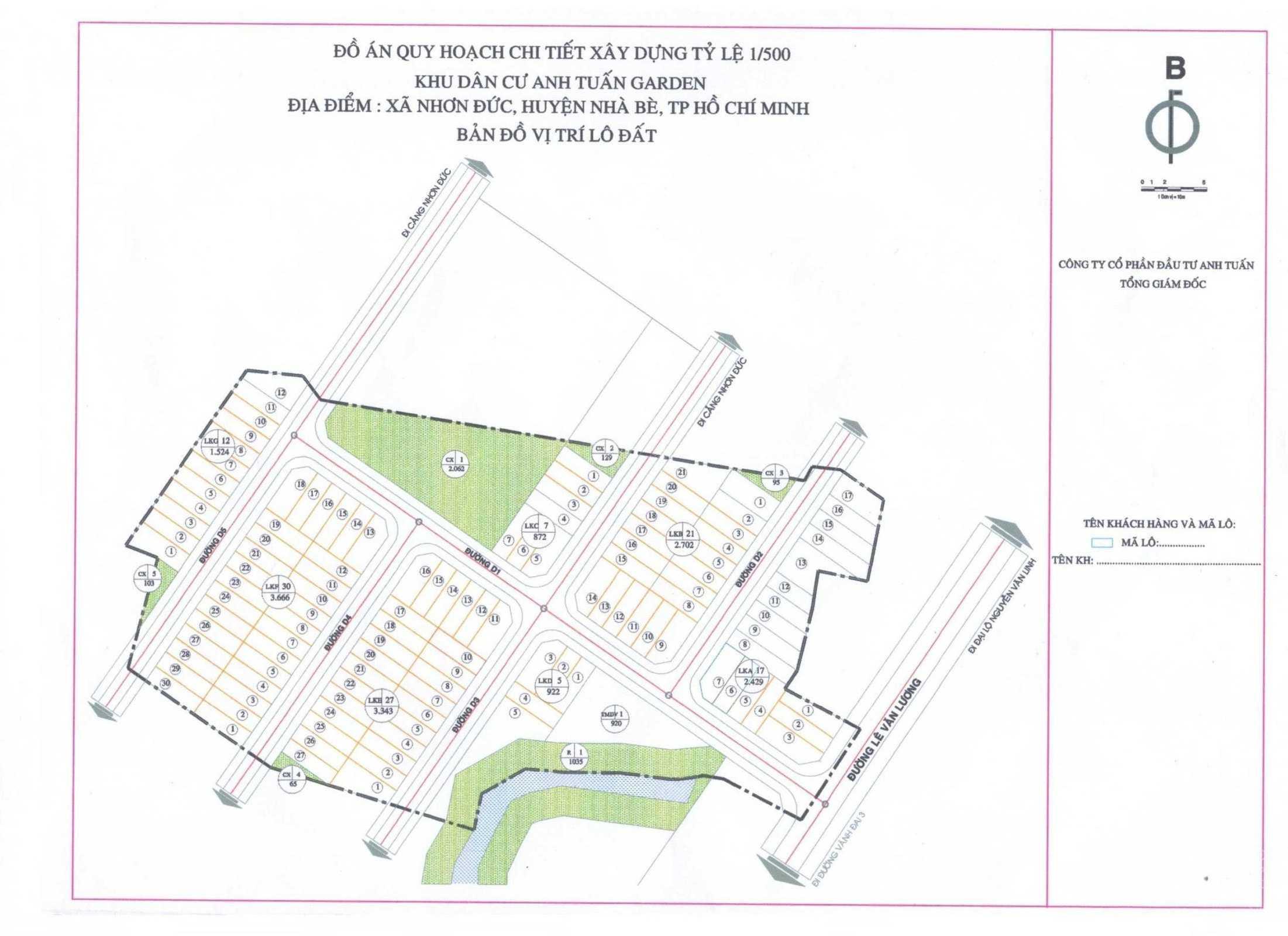
Bản đồ quy hoạch tổng thể dự án Anh Tuấn Garden
Vị trí
Anh Tuấn Garden tọa lạc ngay mặt tiền đường Lê Văn Lương, xã Nhơn Đức, huyện nhà Bè, Tp.HCM.

Vị trí dự án Anh Tuấn Garden
Hình ảnh


Mặt bằng dự án
Mặt bằng thứ 1
Mặt bằng thứ 2
Mặt bằng thứ 3
Mặt bằng thứ 4
Mặt bằng thứ 5