Khu dân cư Nam Tiến
Đường ĐT 398, Xã Đồng Việt, Huyện Yên Dũng, Bắc Giang., Đồng Việt, Yên Dũng
Tổng quan dự án
Khu dân cư Nam Tiến là dự án đất nền tại huyện Yên Dũng, tỉnh Bắc Giang, nổi bật với vị trí đắc địa trên mặt đường Tỉnh lộ 398 rộng 42m, ngay sát đường Vành đai 4 và khu công nghiệp quy hoạch 287ha.
Chủ đầu tư dự án Khu dân cư Nam Tiến là Công ty Cổ phần Đầu tư Xây dựng Hoài Nam.

Vị Trí
Khu dân cư Nam Tiến thuộc địa phận 3 xã Đồng Việt, Đồng Phúc và Đức Giang của huyện Yên Dũng, tỉnh Bắc Ninh. Vị trí dự án khu dân cư Yên Dũng nằm ngay cửa ngõ giao thông kết nối giữa 2 tỉnh Bắc Giang và Hải Dương và liên kết vùng sang khu di tích Côn Sơn – Kiếp Bạc. Khu dân cư mới này nằm trên tuyến đường chính kết nối trung tâm 3 xã Đồng Việt, Đồng Phúc, Đức Giang và lân cận như Cảnh Thụy, Tư Mạn, Cảnh Thụy,…
- 2km đến KCN Đức Giang
- 3km đến đền Kiếp Bạc
- 10km đến TP. Hải Dương
- 20km đến TP. Bắc Giang
Đáng chú ý, vị trí dự án rất gần cầu Đồng Việt đang thi công, cách KCN Đức Giang chỉ khoảng 2km, đồng thời tiếp giáp với các trục cao tốc Hà Nội-Hạ Long, Quốc lộ 17, đường Vành đai 4 vùng Thủ đô. Đây chính là lợi thế lớn làm nên tiềm năng tăng giá của dự án này.
Tiện Ích
Khu dân cư mới Nam Tiến đưcọ chủ đầu tư bố trí các tiện ích đầy đủ nhằm phục vụ nhu cầu của cư dân, bao gồm:
- Công viên cây xanh
- Hồ cảnh quan
- Nhà văn hóa
- Bãi đỗ xe
- Chợ
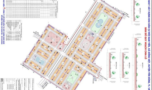
Mặt Bằng - Thiết Kế
Dự án Khu dân cư mới Nam Tiến có tổng diện tích đất quy hoạch là 22,7 ha, trong đó giai đoạn 1 sẽ triển khai trên diện tích 9,8 ha. Với giai đoạn 1, dự án cung ứng cho thị trường 380 lô đất nền liền kề, biệt thự. Diện tích mỗi lô từ 90-180m2.

Tiến Độ
Dự án Khu dân cư Nam Tiến hiện đang trong quá trình thi công hạ tầng, dự kiến sẽ bàn giao hạ tầng vào cuối năm 2023.
Một số hình ảnh thực tế tiến độ dự án Khu dân cư Nam Tiến - Yên Dũng, Bắc Giang năm 2023:


Mặt bằng dự án
Mặt bằng thứ 1
Mặt bằng thứ 2