Khu đô thị Vựng Đâng (Cienco 5 Hạ Long)
Đường Trần Thái Tông, Phường Yết Kiêu, Thành phố Hạ Long, Quảng Ninh., Yết Kiêu, Hạ Long
Tổng quan dự án
Khu đô thị Vựng Đâng (tên khác: Cienco 5 Hạ Long) là một khu đô thị mới lấn biển, tọa lạc tại phường phường Yết Kiêu và Cao Xanh, TP. Hạ Long, Quảng Ninh. Đây là dự án lấn biển đầu tiên của tỉnh Quảng Ninh, có vị trí đẹp, hạ tầng hoàn chỉnh. Chủ đầu tư dự án là Công ty CP Đầu tư Xây dựng Công trình 507.

Vị trí
Khu đô thị mới Vựng Đâng Hạ Long nằm giữa tuyến đường bao biển Vựng Đâng và khu dân cư cũ, cách bến cầu Bãi Cháy 200m, trải dài khoảng 1km.
Hạ tầng - Quy hoạch
Dự án Khu đô thị mới Vựng Đâng - Cienco 5 Hạ Long có tổng diện tích quy hoạch 27,75ha.
- Diện tích đất ở và công trình công cộng: 18,968ha
- Quy mô dân số: 5.690 người
- Các loại hình nhà ở và dịch vụ: biệt thự, nhà chia lô, chung cư, khách sạn
- Tiện ích: nhà trẻ, các dịch vụ công cộng
Dự án Vựng Đâng - Cienco 5 Hạ Long được đầu tư xây dựng hạ tầng kỹ thuật và bàn giao đất cho nhà đầu tư thứ cấp đưa vào sử dụng từ năm 2005. Tính đến năm 2022, mật độ lấp đầy khu đô thị đạt khoảng 80% diện tích đã được quy hoạch.

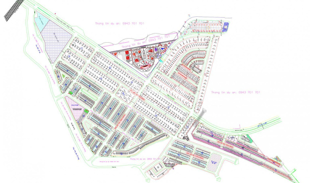
Mặt bằng dự án
Mặt bằng thứ 1
Mặt bằng thứ 2