Nhà ở xã hội 622 Minh Khai

Số 622 Minh Khai, Phường Minh Khai, Quận Hai Bà Trưng, Hà Nội, Minh Khai, Hai Bà Trưng, Hà Nội

Tổng quan dự án

Trạng thái Đang cập nhật
Diện tích 11.910 m
Pháp lý Sổ hồng
Chủ đầu tư TỔNG CÔNG TY ĐẦU TƯ VÀ PHÁT TRIỂN NHÀ HÀ NỘI

Giới thiệuNhà ở xã hội 622 Minh Khai

Dự án Nhà ở xã hội 622 Minh Khai là một trong những dự án nổi bật tại khu vực trung tâm thành phố, mang lại cơ hội sở hữu nhà ở cho những gia đình trẻ, người lao động có thu nhập trung bình. Được thiết kế với không gian sống hiện đại, tiện nghi, dự án không chỉ đáp ứng nhu cầu sinh hoạt mà còn tạo ra môi trường sống lý tưởng. Với lợi thế về vị trí đắc địa, hạ tầng hoàn chỉnh và các tiện ích đa dạng, Nhà ở xã hội 622 Minh Khai chắc chắn sẽ là lựa chọn tuyệt vời cho các cư dân đang tìm kiếm một mái ấm lâu dài.

Vị trí dự án

Dự án Nhà ở xã hội 622 Minh Khai nằm tại vị trí trung tâm, dễ dàng kết nối với các tuyến giao thông quan trọng của thành phố. Với việc nằm gần các trục đường lớn như Minh Khai, Tam Trinh, giao thông ở đây rất thuận tiện. Đây là khu vực đang phát triển mạnh mẽ, với sự gia tăng của các dự án hạ tầng, cơ sở vật chất, mang lại tiềm năng phát triển lớn trong tương lai. Các cư dân có thể nhanh chóng di chuyển đến các khu vực trung tâm thành phố cũng như tiếp cận các khu vực xung quanh.

Hạ tầng giao thông/Cơ sở hạ tầng trong khu vực

Khu vực xung quanh dự án Nhà ở xã hội 622 Minh Khai đã được đầu tư mạnh mẽ về hạ tầng giao thông. Các tuyến đường chính được cải tạo và mở rộng, giúp giảm tải ùn tắc giao thông và tăng khả năng kết nối với các khu vực khác trong thành phố. Hệ thống giao thông công cộng trong khu vực cũng được cải thiện, với các trạm xe buýt, ga tàu điện ngầm và các phương tiện công cộng khác, tạo sự thuận tiện tối đa cho cư dân khi di chuyển. Bên cạnh đó, các tiện ích công cộng như bệnh viện, trường học, trung tâm thương mại cũng được xây dựng gần dự án, giúp cư dân tiết kiệm thời gian di chuyển.

Mặt bằng chung của dự án/Hạ tầng - quy hoạch dự án

Nhà ở xã hội 622 Minh Khai có quy mô lớn với mật độ xây dựng hợp lý, được phân chia thành các khu vực rõ ràng. Dự án được quy hoạch theo tiêu chuẩn hiện đại, với các tòa nhà chung cư cao tầng và khu vực đất công cộng. Mỗi căn hộ đều được thiết kế tối ưu để tối đa hóa không gian sống, đồng thời đảm bảo tính riêng tư cho cư dân. Khuôn viên dự án có nhiều không gian xanh, công viên, đường đi bộ và khu thể dục thể thao, tạo không gian sống lý tưởng cho cư dân. Ngoài ra, các công trình phụ trợ như khu đỗ xe, trung tâm thương mại cũng được xây dựng đồng bộ, đảm bảo đáp ứng nhu cầu sinh hoạt và làm việc của cư dân.

Tiện ích nội khu

Dự án Nhà ở xã hội 622 Minh Khai cung cấp các tiện ích nội khu đầy đủ và hiện đại, giúp cư dân tận hưởng một cuộc sống thoải mái. Các tiện ích bao gồm:

  • Sân chơi trẻ em rộng rãi và an toàn
  • Khu vực thể dục thể thao như phòng gym, sân tennis, bể bơi ngoài trời
  • Công viên cây xanh, đường đi bộ tạo không gian thư giãn
  • Trung tâm thương mại, siêu thị tiện ích ngay trong khuôn viên dự án
  • Hệ thống an ninh 24/7 với camera giám sát và bảo vệ chuyên nghiệp, đảm bảo an toàn cho cư dân

Tiện ích ngoại khu

Dự án Nhà ở xã hội 622 Minh Khai không chỉ mang đến tiện ích nội khu mà còn nằm trong khu vực có nhiều tiện ích ngoại khu hiện đại. Cư dân có thể dễ dàng tiếp cận các dịch vụ cơ bản như:

  • Trường học các cấp (tiểu học, trung học cơ sở, trung học phổ thông) trong bán kính 2-3km
  • Bệnh viện và phòng khám đa khoa gần dự án, đáp ứng nhu cầu chăm sóc sức khỏe
  • Các trung tâm thương mại lớn như Big C, Vincom, chợ truyền thống để mua sắm
  • Các khu vui chơi giải trí, rạp chiếu phim, nhà hàng, quán cà phê đáp ứng nhu cầu thư giãn của cư dân

Điểm nổi bật của dự án/Tiềm năng phát triển của dự án/Đánh giá chất lượng của dự án

Nhà ở xã hội 622 Minh Khai là một dự án có tiềm năng phát triển lớn, nhờ vào vị trí đắc địa, hạ tầng hoàn thiện và cơ sở vật chất hiện đại. Dự án không chỉ là một nơi ở lý tưởng mà còn có tiềm năng sinh lời cao nhờ vào sự phát triển của khu vực xung quanh. Chất lượng xây dựng của dự án được đánh giá rất cao, các căn hộ được thiết kế đẹp mắt, đảm bảo an toàn và bền vững. Dự án có tiềm năng lớn trong việc thu hút cư dân trẻ và các gia đình tìm kiếm không gian sống tiện nghi và giá cả hợp lý.

Giá mua bán/cho thuê

Giá mua bán và cho thuê tại dự án Nhà ở xã hội 622 Minh Khai rất hợp lý so với mặt bằng chung của thị trường. Các căn hộ có mức giá phù hợp với thu nhập của người dân lao động và gia đình trẻ. Dự án cũng có các chính sách hỗ trợ vay vốn ưu đãi, giúp người mua dễ dàng tiếp cận với căn hộ mơ ước của mình. Mức giá cho thuê tại dự án cũng hợp lý, phù hợp với những người có nhu cầu thuê nhà lâu dài.

Thông tin chủ đầu tư

Dự án Nhà ở xã hội 622 Minh Khai được phát triển bởi một chủ đầu tư uy tín và có kinh nghiệm trong việc triển khai các dự án bất động sản lớn. Với đội ngũ chuyên gia và kỹ sư giàu kinh nghiệm, chủ đầu tư cam kết mang đến cho cư dân những sản phẩm nhà ở chất lượng, đúng tiến độ và giá trị bền vững. Chủ đầu tư cũng chú trọng đến việc đảm bảo an toàn và chất lượng trong suốt quá trình xây dựng, từ đó mang lại sự yên tâm cho các cư dân khi lựa chọn sinh sống tại đây.

Lời kết
Dự án Nhà ở xã hội 622 Minh Khai là một lựa chọn tuyệt vời cho những ai đang tìm kiếm một ngôi nhà tiện nghi, chất lượng với mức giá hợp lý. Với vị trí đắc địa, hạ tầng hoàn thiện, tiện ích đa dạng và chất lượng xây dựng tốt, dự án này chắc chắn sẽ là một nơi lý tưởng để bạn và gia đình xây dựng tổ ấm lâu dài.

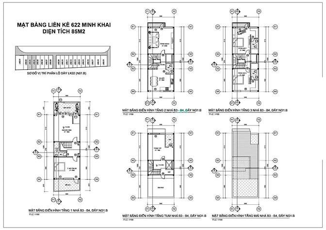
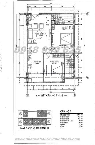
Mặt bằng dự án

Mặt bằng thứ 1
Mặt bằng 1
Mặt bằng thứ 2
Mặt bằng 2
Mặt bằng thứ 3
Mặt bằng 3
Mặt bằng thứ 4
Mặt bằng 4
Mặt bằng thứ 5
Mặt bằng 5
Mặt bằng thứ 6
Mặt bằng 6
Mặt bằng thứ 7
Mặt bằng 7

Vị trí

Địa chỉ: Số 622 Minh Khai, Phường Minh Khai, Quận Hai Bà Trưng, Hà Nội
Tỉnh/Thành: Hà Nội
Quận/Huyện: Hai Bà Trưng
Phường/Xã: Minh Khai
0
So sánh