Nhóm nhà ở Tây Nam Mễ Trì
Đường Châu Văn Liêm, Phường Phú Đô, Quận Nam Từ Liêm, Hà Nội., Phú Đông, Nam Từ Liêm
Tổng quan dự án
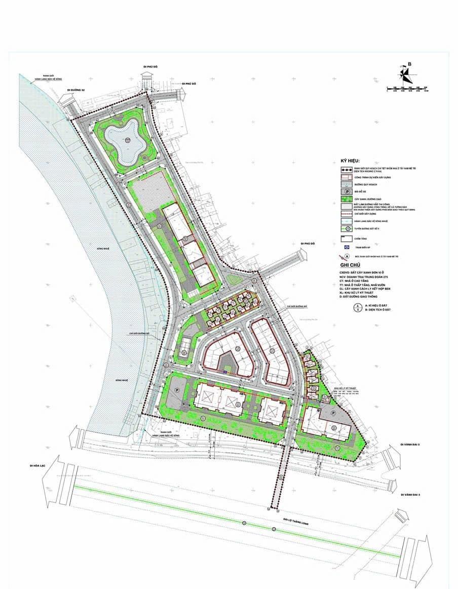
Nhóm nhà ở Tây Nam Mễ Trì là dự án liền kề biệt thự và cao tầng được đầu tư xây dựng ở Phường Phú Đô, quận Nam Từ Liêm, Thành phố Hà Nội do Công ty Cổ phần Xây dựng và Phát triển nhà DAC Hà Nội làm chủ đầu tư, với quy mô dự án 57.490m2 gồm 46 lô liền kề/Shophouse, 19 lô biệt thự và 3 toà nhà chung cư cao tầng.

Vị Trí:
Dự án Nhóm nhà ở Tây Nam Mễ Trì tọa lạc tại vị trí Đường Châu Văn Liêm, Phường Phú Đô, Quận Nam Từ Liêm, đối diện với Trụ sở Bộ Ngoại Giao, ngay gần với Trung tâm Hội nghị Quốc gia và Bảo tàng Hà Nội, là cửa ngõ phía tây Thủ Đô, kết nối với 2 tuyến đường huyết mạch dẫn đến các vị trí trung tâm thành phố là tuyến đường Mễ Trì và tuyến đường Đại Lộ Thăng Long. Đây là khu vực phát triển nhất của Thành phố Hà Nội, kết nối giao thông đến khu vực hành chính, kinh tế thuận tiện.
- Phía Đông: Tiếp giáp khu dân cư Phú Đô.
- Phía Tây: Tiếp giáp sông Nhuệ.
- Phía Nam: Tiếp giáp đường gom đại lộ Thăng Long.
- Phía Bắc: Tiếp giáp khu dân cư Phú Đô.

Giá Bán
Giá bán của dự án Nhóm nhà ở Tây Nam Mễ Trì được cập nhật tại đây
Thiết Kế - Mặt Bằng:
Quy mô: 57.490m2 gồm:
Đất bàn giao cho Bộ Tư lệnh bảo vệ Lăng Chủ tịch Hồ Chí Minh xây dựng doanh trại Đoàn 275 diện tích: 4.788m2.
Đất cây xanh đơn vị ở bàn giao cho UBND Quận Nam Từ Liêm: 4.002m2.
Đất phải bàn giao cho TP thuộc quỹ đất 20%: 2.308m2.
Đất xây dựng bãi xe, sân tennis: 2.258m2.
Đất xây dựng nhà ở 9.519m2, trong đó:
- Đất xây dựng nhà thấp tầng 7.924m2.
- Đất xây dựng 01 nhà chung cư 12 tầng + 2 tầng hầm: 1.595m2.
Đất để mở đường vào thi công: 579m2.
Đất nằm trong hành lang bảo vệ tuyến điện cao thế, hành lang bảo vệ sông Nhuệ, sân đường, vỉa hè, vườn hoa cây xanh, đường nội bộ và hạ tầng kỹ thuật chung: 34.036m2.
Loại hình sản phẩm: Shophouse, liền kề, biệt thự, tòa nhà chung cư cao tầng.
Số lượng sản phẩm:
- Biệt thự liền kề: 65 căn.
- Tòa nhà chung cư cao tầng: 3 tòa.
Diện tích sản phẩm:
- Liền kề: Từ 75m2.
- Shophouse: Từ 95m2.
- Biệt thự song lập: Từ 140m2.
- Chung cư cao tầng: Từ 62m2 - 70m2.







Tiện Ích:
Dự án Nhóm nhà ở Tây Nam Mễ Trì có những tiện ích nội khu như:
- Khu thể thao phức hợp.
- Hồ điều hòa.
- Khu vui chơi trẻ em.
- Cửa hàng tiện ích.
- Công viên giải trí.
- Trung tâm tổ chức Hội nghị.
- Khách sạn.
- Phòng khám đa khoa.
- Club
- Trường học liên cấp quốc tế.
- Bãi đỗ xe.
- Khu trung tâm.
- Khu tập thể dục ngoài trời.
- Trung tâm thể thao.
- Khu hoạt động ngoài trời.
- Khu giáo dục.
- Làng thế giới.
- Khu phố thương mại.
- Công viên công cộng.
- Khu đồ dùng thể thao.
- Tiện ích từng khu khép kín.

Ngoài ra, cư dân của dự án Nhóm nhà ở Tây Nam Mễ Trì dễ dàng kết nối tới những tiện ích ngoại khu như:
- Sân vận động Mỹ Đình.
- Trung tâm hội nghị Quốc Gia.
- Hồ Gươm.
- Keangnam.
- Bộ Ngoại Giao.
- Bệnh viện.
- Trường tiểu học.
- BigC Thăng Long.

Pháp Lý:
UBND Thành phố Hà Nội phê duyệt Quy hoạch chỉ tiết tỷ lệ 1/500 tại Quyết định số 120/2005/QĐ-UB Ngày 03/08/2005 và điều chỉnh cục bộ tại Quyết định số 4517/QĐ-UBND ngày 22/8/2019.
Sở Xây dựng Hà Nội thẩm định bản vẽ thiết kế cơ sở của dự án, thiết kế cơ sở hạng mục khu nhà thấp tầng, thiết kế cơ sở hạng mục hạ tầng kỹ thuật tại Văn bản số 1222/TĐ-SXD ngày 16/8/2006, Văn bản số 10806/SXD-QLXD ngày 10/11/2017, Văn bản số 7749/SXD-QLXD ngày 26/08/2020.
Tiến Độ:
Hình ảnh thực tế dự án Nhóm nhà ở Tây Nam Mễ Trì:




Tin mua bán tại dự án
Xem tất cả
Bán biệt thự đẹp tại Nhóm nhà ở Tây Nam Mễ Trì, 90m² giá 27 tỷ - Sẵn sàng vào ở ngay!
Nam Từ Liêm, Hà Nội
6 tháng trước
Quỹ căn liền kề biệt thự Tây Nam Mễ Trì, Mỹ Đình - Giá hấp dẫn từ 27 tỷ!
Nam Từ Liêm, Hà Nội
5 tháng trước
Bán biệt thự song lập Tây Nam Mễ Trì 139m² giá thương lượng - Nhà hoàn thiện, có thang máy!
Nam Từ Liêm, Hà Nội
5 tháng trước
Biệt thự song lập khu đô thị Tây Nam Mễ Trì 140m² giá 43.5 tỷ - Vị trí đắc địa gần sân vận động
Nam Từ Liêm, Hà Nội
5 tháng trước
Liền kề B - 02 Tây Nam Mễ Trì 119.6m² giá 30 tỷ - Cơ hội đầu tư vàng!
Nam Từ Liêm, Hà Nội
7 tháng trước
Chung cư Nhóm nhà ở Tây Nam Mễ Trì 70m² giá thỏa thuận - Cơ hội đầu tư hấp dẫn!
Nam Từ Liêm, Hà Nội
7 tháng trước