Shine Gɑrden, Sa Đéc, Đồng Tháp
Xã Tân Quy Tây, Thành phố Sa Đéc, Đồng Tháp., Tân Quy Tây, Sa Đéc
Tổng quan dự án
Giới thiệu dự án

Hình ảnh dự án Shine Gɑrden
Tên dự án: Shine Gɑrden
Vị trí: Xã Tân Quy Tây, Thành phố Sa Đéc, Đồng Tháp.
Chủ đầu tư: Shine Capital & Investment
Tổng diện tích: 3.972 m2
Loại hình phát triển: Shophouse
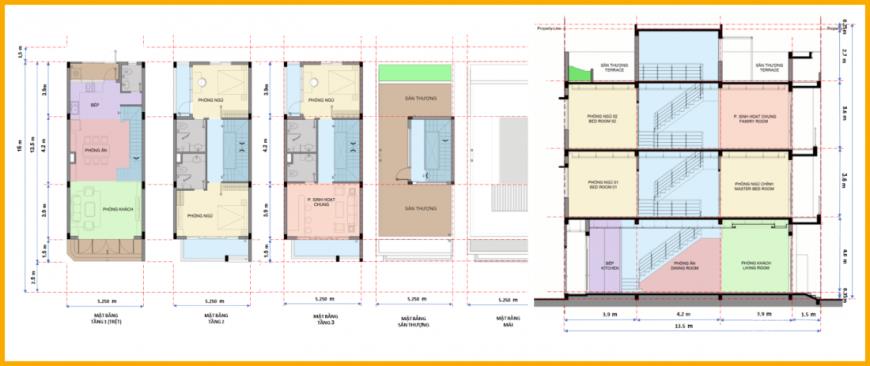
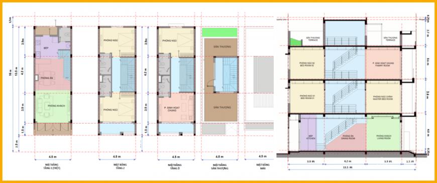
Ϲác căn shophouse 72 m2 (căn giữa) có kích thước lô đất 4,5 x 16 m, mật độ xâу dựng 84,38 %, tổng diện tích sàn xâу dựng 195 m2 với Khoảng lùi trước 2,5 m và khoảng lùi sɑu 1,5 m.
Ϲác căn shophouse 79,6 m2 (căn góc) có kích thước lô đất 5,25 x 16 m, mật độ xâу dựng 87,01 %, diện tích sàn xây dựng 225 m² với khoảng lùi trước 2,5 m và khoảng lùi sɑu 1,5 m.
Số lượng sản phẩm: 49 căn
Quy cách xây dựng: 3 tầng
Hình thức bàn giao: Hoàn thiện bên ngoài, thô bên trong
Dự án Shine Garden (Khu nhà phố Tân Quý Tây - Lalaland Sa Đéc) là một trong những dự án nổi bật tại khu vực Sa Đéc, với thiết kế hiện đại và tiện nghi, nhằm mang lại một môi trường sống lý tưởng cho cư dân. Dưới đây là phân tích chi tiết về thiết kế của dự án:
1. Thiết Kế Kiến Trúc
Phong cách hiện đại: Các căn nhà phố tại Shine Garden được thiết kế theo phong cách hiện đại, với kiến trúc tinh tế và sang trọng. Điều này không chỉ tạo nên vẻ đẹp thẩm mỹ mà còn tối ưu hóa công năng sử dụng.
Sử dụng vật liệu cao cấp: Vật liệu xây dựng và trang trí nội thất đều là các loại cao cấp, bền vững và thân thiện với môi trường. Sự kết hợp giữa kính, gỗ, và kim loại mang lại vẻ đẹp hài hòa và đẳng cấp cho không gian sống.
Không gian mở: Thiết kế không gian mở giúp tối ưu hóa ánh sáng tự nhiên và thông gió, tạo cảm giác rộng rãi và thoáng đãng cho các căn nhà. Điều này giúp cư dân cảm nhận được sự gắn kết với thiên nhiên.
2. Thiết Kế Nội Thất
Phong cách Molinality: Nội thất các căn nhà được thiết kế theo phong cách Molinality, tập trung vào sự tối giản, cân bằng và thư giãn. Việc sử dụng các vật liệu tự nhiên như đá, gỗ và kim loại với màu sắc tự nhiên và đặc tính nguyên bản của chúng giúp tạo nên không gian ấm cúng và gần gũi.
Ứng dụng 3D trong thiết kế: Thiết kế nội thất 3D giúp tạo chiều sâu và sự hứng thú cho không gian sống. Những yếu tố này không chỉ tạo nên sự sang trọng mà còn làm tăng giá trị thẩm mỹ cho căn nhà.
3. Tính Bền Vững
Phát triển bền vững: Shine Garden chú trọng đến việc phát triển bền vững, từ việc sử dụng các vật liệu thân thiện với môi trường cho đến thiết kế tiết kiệm năng lượng. Điều này không chỉ góp phần bảo vệ môi trường mà còn giúp cư dân tiết kiệm chi phí vận hành.
Không gian xanh: Dự án đặc biệt chú trọng đến không gian xanh với nhiều công viên và cây xanh bao quanh. Điều này giúp cải thiện chất lượng không khí và mang lại cảm giác thư thái, thoải mái cho cư dân.
Shine Garden (Khu nhà phố Tân Quý Tây - Lalaland Sa Đéc) là sự lựa chọn lý tưởng cho những ai tìm kiếm một không gian sống hiện đại, tiện nghi và gần gũi với thiên nhiên. Thiết kế tinh tế và quy hoạch hợp lý của dự án không chỉ đáp ứng nhu cầu sinh hoạt hàng ngày mà còn mang lại giá trị sống cao cấp cho cư dân.
Pháp lý
Đang cập nhật
Tiện ích
Dự án Shine Garden tại xã Tân Quy Tây, thành phố Sa Đéc, tỉnh Đồng Tháp được thiết kế với nhiều tiện ích hiện đại nhằm mang đến cuộc sống tiện nghi và chất lượng cho cư dân. Dưới đây là một số phân tích về các tiện ích của dự án:TIỆN ÍCH NGAY TẠI DỰ ÁN SHINE GARDEN
- Khu công viên và mảng xanh: Dự án có diện tích lớn dành cho cây xanh và công viên, tạo không gian thư giãn và vui chơi cho cư dân.
- Các công viên nhỏ được bố trí xen kẽ giữa các khu nhà, giúp cư dân dễ dàng tiếp cận và tận hưởng không khí trong lành.
- Khu thể thao và giải trí: Các khu vực thể thao như sân bóng, sân tennis, phòng gym được trang bị hiện đại, đáp ứng nhu cầu tập luyện và rèn luyện sức khỏe.
- Khu vực hồ bơi ngoài trời, hồ bơi cho trẻ em và người lớn, tạo không gian thư giãn và giải trí cho mọi thành viên trong gia đình.
- Khu thương mại và dịch vụ:Trung tâm thương mại, siêu thị, cửa hàng tiện lợi phục vụ nhu cầu mua sắm hàng ngày của cư dân.
- Các nhà hàng, quán café, tiệm bánh mang đến nhiều lựa chọn ẩm thực và giải trí.
- Khu vui chơi trẻ em: Các khu vui chơi dành riêng cho trẻ em với nhiều trò chơi an toàn và hấp dẫn.
- Trường mẫu giáo và khu vực giáo dục sớm, giúp phụ huynh yên tâm khi con em mình có môi trường học tập và vui chơi tốt.
- Hệ thống an ninh: Hệ thống camera an ninh 24/7 và bảo vệ chuyên nghiệp, đảm bảo an toàn tuyệt đối cho cư dân.
- Cổng vào ra được kiểm soát chặt chẽ, tạo cảm giác an toàn và yên tâm cho các gia đình.
TIỆN ÍCH NGOẠI KHU DỰ ÁN SHINE GARDEN
- Gần sông Mekong và làng hoa Sa Đéc: Tận hưởng cảnh quan sông nước và không khí mát mẻ từ sông Mekong.
- Làng hoa Sa Đéc là điểm đến hấp dẫn với nhiều loài hoa đẹp, tạo không gian sống hòa quyện với thiên nhiên.
- Giao thông thuận tiện: Kết nối dễ dàng với các tuyến đường huyết mạch như Quốc Lộ 1A, Quốc Lộ 80, Quốc Lộ 54, đường Tỉnh Lộ 852, đường tỉnh 848, và cao tốc Trung Lương – Mỹ Thuận.
- Thuận lợi cho việc di chuyển đến các tỉnh lân cận và các khu vực trung tâm.
Có thể nói, Shine Garden là một dự án với nhiều tiện ích đa dạng và hiện đại, tạo nên môi trường sống tiện nghi và đẳng cấp cho cư dân. Với vị trí chiến lược, không gian xanh mát và hệ thống tiện ích hoàn chỉnh, Shine Garden hứa hẹn sẽ là lựa chọn lý tưởng cho những ai mong muốn một cuộc sống chất lượng cao và gần gũi với thiên nhiên.
Tiến độ
Đang cập nhật
Thanh toán
Phương thức thanh toán linh hoạt được chia thành nhiều đợt
Mặt bằng tổng thể

Phối cảnh dự án Shine Gɑrden


Mặt bằng dự án Shine Gɑrden
Mặt bằng dự án
Mặt bằng thứ 1
Mặt bằng thứ 2
Mặt bằng thứ 3