SkyM
Đường Hoàng Quốc Việt, Phường Hùng Thắng, Thành phố Hạ Long, Quảng Ninh., Hùng Thắng, Hạ Long
Tổng quan dự án
SkyM là tổ hợp thương mại dịch vụ, văn phòng và căn hộ nghỉ dưỡng tọa lạc tại khu đô thị Hạ Long Marina do Công Ty Cổ Phần Đầu Tư Phát Triển Syrena Việt Nam làm chủ đầu tư. Dự án gồm 3 tòa tháp cao 40 tầng với 1.980 căn và 53 căn Shophouse

Vị Trí
Dự án SkyM tọa lạc ngay cửa ngõ phía Tây Nam Thành phố Hạ Long thuộc KĐT Hạ Long Marina, lô đất B1.3 mặt tiền đường Hoàng Quốc Việt, phường Hùng Thắng, thành phố Hạ Long, tỉnh Quảng Ninh

Kết nối vùng:
- Nằm cạnh TTTM Lotte, dự án ICON 40
- Cách Marina Bay, CGV khoảng 1km
- Cách chợ đêm Hạ Long khoảng 3km
- Cách bến xe Bãi Cháy khoảng 4km
- Cách công viên Hạ Long khoảng 5km

Mặt Bằng - Thiết Kế
Tổng diện tích đất: 10.788m2
Diện tích xây dựng: 5.287m2
Tổng diện tích sàn: 78.123m2
3 Tòa tháp S1 - S2 - S3
Số tầng: 40 tầng nổi và 2 tầng hầm
Số lượng sản phẩm: 1.980 căn + 53 căn Shophouse
- Tòa S1: 756 căn
- Tòa S2: 468 căn
- Tòa S1: 756 căn
Loại hình sản phẩm:
- Shophouse: 53 căn 2 tầng - Diện tích 31,97m2 - 122,16m2
- Căn hộ cao cấp: 292 căn - Diện tích 30,47m2 - 194,3m2
- Căn hộ dịch vụ khách sạn: 580 căn - Diện tích 30,47m2 - 115,44m2
- Căn hộ dual-key

Mặt bằng tòa tháp
Dự án SkyM gồm 3 tòa tháp cao 40 tầng nổi + 2 tầng hầm:
- 2 tầng hầm đỗ xe
- Tầng 1 - 2: Sảnh và Shophouse
- Tầng 3: Tầng tiện ích
- Tầng 4 - 9: Tầng căn hộ
- Tầng 20: Tầng tiện ích
- Tầng 21-40: Tầng căn hộ


Mặt bằng căn hộ


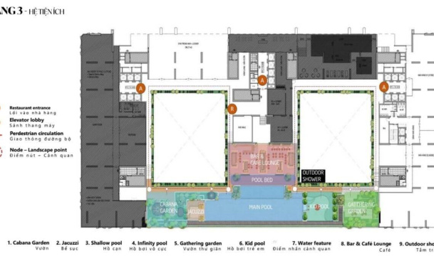
Tiện Ích
Dự án SkyM gồm nhiều tiện ích nội khu đa dạng:
- Hồ bơi ngoài trời rộng 444,6m2
- 2 Hồ bơi trong nhà
- Khu sân vườn, lounge
- Sân chơi trẻ em, sân tập thể dục
- Vườn dạo, vườn nước, vườn đọc sách, vườn trà
- Gym, thiền, thư viện
- Nhà hàng, cafe, BBQ






Tin mua bán tại dự án
Xem tất cả
Căn hộ SkyM Bãi Cháy View Vịnh - Chiết khấu khủng, Sở hữu lâu dài!
Thành phố Hạ Long, Quảng Ninh
28 ngày trước
Căn hộ Sky M Hạ Long 33m² - Full nội thất cao cấp 5 sao!
Thành phố Hạ Long, Quảng Ninh
1 tháng trước
Căn hộ Mặt Biển Hạ Long 36m² giá 1.8 tỷ - Sổ đỏ vĩnh viễn, cho thuê dễ dàng!
Thành phố Hạ Long, Quảng Ninh
3 tháng trước
Căn hộ 2 phòng ngủ SkyM Hạ Long 79m² giá 2.744 tỷ - Bàn giao full nội thất 5 sao!
Hạ Long, Quảng Ninh
4 tháng trước
Shophouse tại trung tâm hành chính Hạ Long 33m² giá chỉ 2.9 tỷ - Cơ hội đầu tư tuyệt vời!
Hạ Long, Quảng Ninh
5 tháng trước
Căn hộ mặt biển Bãi Cháy Hạ Long - Sky M 36m² giá 1.8 tỷ - Đầu tư sinh lời tuyệt vời!
Hạ Long, Quảng Ninh
5 tháng trước
Mặt bằng dự án
Mặt bằng thứ 1
Mặt bằng thứ 2
Mặt bằng thứ 3
Mặt bằng thứ 4